Réalisations

Nos réalisations

Retour

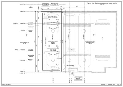
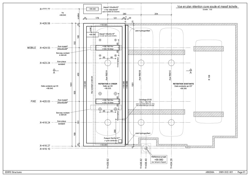
Arkema Dépotage

Pierre Bénite (69)

Construction d'une nouvelle rétention pour une cuve de soude et d'une aire de dépotage pour le site d'ARKEMA à Pierre Bénite

 

 

  • Maitre d'ouvrage : ARKEMA
  • Entreprise : MTI
  • Mission : DCE+ EXE 
  • Année : 2021

 

Besoin d'informations sur nos prestations

Contactez-nous

Autres projets

STEP Rians
En savoir +
Usine Eau Annonay
Annonay
En savoir +
Batiment Commercial
Loire sur Rhône (69)
En savoir +
STEP Caderousse
Caderousse (84
En savoir +
Maison de l'amitié
Morestel (38)
En savoir +
Groupe Scolaire Jean Moulin
Brignais (69)
En savoir +
Station d'épuration de Lunel
Lunel (34)
En savoir +
Chaufferie
Lannemezan (65)
En savoir +
Batiment Multi-accueil
Cheyssieu (38)
En savoir +
Chaufferie
Arcey (25)
En savoir +
SMURFIT KAPPA - Master Cut
Chasse Sur Rhône (69)
En savoir +
Imhotep - Extension
Pont Eveque (38)
En savoir +
Les Jardins d'Hippolyte
Chuzelles (38)
En savoir +
Centre de radiologie
Roussillon (38)
En savoir +
Realisation default
Ecole de l'Oratoire
En savoir +
Gaz'Up
Ytrac (15)
En savoir +
Pharmacie de la Colombe
Saint Symphorien D'Ozon
En savoir +
Cave MFR Chaumont
Eyzin Pinet (38)
En savoir +
Stade T. Granjon - Mats eclairage
St Symphorien Sur Coise (69)
En savoir +
Pylone Aurillac La Bastide Du Haut Mont
Aurillac La Bastide Du Haut Mont (46)
En savoir +
Mairie Extension et rénovation
Saint Maurice L\'Exil (38)
En savoir +
BF Moteur
Boulieu Les Annonay (07)
En savoir +
Foyer communal
St Pierre de Boeuf (42)
En savoir +
Bâtiment municipal
Loire sur Rhône (69)
En savoir +
Renovation/Construction Batiments
Saint Martin La Plaine (42)
En savoir +
Accueil de Loisirs sans hebergement
Dièmoz (38)
En savoir +
Réservoir St Laurent
Saint Laurent La Vernedes (30)
En savoir +
Reservoir Cogolin
Cogolin (83)
En savoir +
STEP Mornas
Mornas (84)
En savoir +
Reservoir ST Micro
Crolles (38)
En savoir +
Bassin Stockage 1700m3
La Grande Motte (34)
En savoir +
Proviridis
Viriat
En savoir +
UTEB Balaruc
Balaruc Les Bains (34)
En savoir +
Usine Eau
Manosque (04)
En savoir +
Reservoir Belle-Isnarde
Saint Tropez (83)
En savoir +
Ref&Co
Pont Eveque (38)
En savoir +
STEP Veynes
Veynes (05)
En savoir +
Poste de refoulement La Presle
Roman-sur-Isère (26)
En savoir +
STEP Adisséo
Commentry (03)
En savoir +
STEP Valence
Valence (26)
En savoir +
Villa N
St Didier Au Mont D\'Or (69)
En savoir +
Logements
Charantonnay (38)
En savoir +
Les Jardins de Mayeux
Beynost (01)
En savoir +
Saica Paper PP60
Laveyron (26)
En savoir +
E-Sim Dassault
Istres(13)
En savoir +
Rénovation Tour de Guet
Buisson (84)
En savoir +
Protection crue CHU Montpellier
Montpellier (34)
En savoir +
Pylone Hauteluce
Hauteluce (73)
En savoir +
Pylone Fay En Montagne
Fay En Montagne (39)
En savoir +
Hôpitaux Drôme Nord
Roman-sur-Isère (26)
En savoir +
Confortement d'un hangar
Montélimar (26)
En savoir +
Le Rucher
Dardilly (69)
En savoir +
Avis technique pour une villa de particuliers
La Roche le Buis (26)
En savoir +
Diagnostic d'un corps de ferme Auberge
Bouvières (26)
En savoir +
Grange cistercienne
Bonnefamille (38)
En savoir +
Station d'épuration de Chadrac
Le Puy en Velay (43)
En savoir +
Station d'épuration de Limony Serriere
Limony Serriere (07)
En savoir +
Syndicat des Portes de Provence
Malataverne (26)
En savoir +
Atelier du fromage
Corbas (69)
En savoir +
Lidl
St Julien en Genevois (74)
En savoir +
Villa
Montélimar (26)
En savoir +
Immeuble Quai 47
En savoir +
Centre sportif Briffaut
Valence (26)
En savoir +
IME Camille Veyron
Bourgoin-Jallieu (38)
En savoir +
EHPAD Le Chateau de Grex
Corbonod (01)
En savoir +
EHPAD et FPA
Villefranche-sur-Saône (69)
En savoir +
Réhabilitation bâtiments municipaux
Buis les Baronnies (26)
En savoir +
Salle Marcelle GENIN
Saint-Pierre-de-Chandieu (69)
En savoir +